在設計展廳時,要考慮消防安全的問題,注意防火分隔不一樣的區域,信可威是一件專業做企業展廳設計公司,有著近20年施工經驗,對于展廳消防安全問題有著專業的經驗,本文就展廳設計怎樣做好消防安全措施進行簡單的介紹。
1、根據展廳整體布局規劃來設置防火隔離帶
盡可能減小占地面積,有效提高展廳的利用面積,隔離帶要做到能夠直通室外,隔離帶上無物品擺放且空間開闊,可作為參觀者們的疏散通道,不然可能造成防火隔離帶不僅占用面積較大,而且路線曲折,更有可能不能通向展廳主出入口,不利于人員疏散。
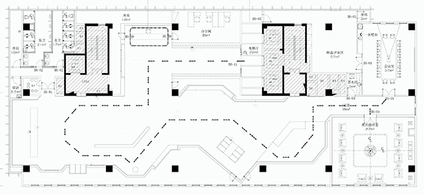
某企業展廳平面圖
2、展廳疏散設計可根據展廳平面布置、建筑形式均勻布置安全出口
合理設置疏散誘導與能保持視覺連續的疏散指示標志,根據面積大小合理確定展廳內人數,設計安全出口數量及疏散寬度。
3、妥善布置排煙系統和噴淋系統
展廳空間大多都較高且廣,火災荷載密度也比較高,排煙系統我們應優先考慮及采用機械排煙方式,但也有不可避免的特殊情況存在,當展廳內設置機械排煙系統有困難時,可考慮采用自然排煙。
企業展廳設計中消防問題是不可忽視的重要問題,以上提到的3個方面大家可提前做個了解。在防患于未然的同時也要做到意外發生時將意外損害減至更低。

展廳設計裝修在現代商業環境中扮演著舉足輕重的角色。它不僅是企業展示自身形象、宣傳產品的重要平臺,更是吸引客戶、促進業務合作的關鍵環節。本文將深入探討展廳設計裝修的意義,并以一個200平方米的展廳為例,詳細闡述其設計與施工過程中的要點。

進入21世紀以來,我國的科技館事業進入一個嶄新的發展階段。科技館的建設與管理運行也越來越受到國家和地方政府的關注和重視,頒布了一系列科技館建設的政策、法規。使科技館的建設管理逐漸納入法制化軌道。

上海信可威展覽設計公司專業從事展會展臺設計、展會策劃、展臺搭建的展覽服務,同時提供展示設計,承接大小型展會布展,作為展覽搭建公司致力為客戶提供前期策劃、設計創意、現場搭建和維護、全國巡展等,致力于全球各個國家各個城市的一站式會展設計搭建服務。

隨著對品牌形象的深刻認識,除了上市企業開始做展廳之外,很多政府部門也搭建了很多大大小小不同的展廳,專門作為招商引資和當地形象展示。由于對展廳的認識不夠了解,很多設計出來的展廳達不到預期的效果,那么展廳設計裝修有哪些技巧,讓你在設計施工的時候更能準確把握甲方的需求。

文字在展廳設計中大多數是以平面設計中表現形式,除了“文字”之外還有“顏色”和“圖片”,其中顏色代表展廳中不同區塊的整體色彩表達;圖片代表展板中,或者其他區域內有關圖片內容的表達;文字即展廳區域內所有文字內容的表達。 本文就“文字”在展廳設計中有哪些突出作用進行簡單的解釋。

多媒體展廳,又叫做多媒體數字化展廳,是指以多媒體和數字化技術作為展示技術,以各類新穎的技術吸引參觀者,實現人機交互方式的展廳形式。

展廳是企業形象和品牌及產品展示場所,但是由于上市企業、科技公司的展廳一般來說都有幾百平,甚至上千平,那么這設計裝修下來的費用基本幾十萬甚至上百萬,隨著疫情的發生,造成很多企業在市場宣傳這塊都降低支出,一般對于展廳來,企業展廳裝修的費用要比展廳施工費用要高,那么企業展廳裝修如何降低成本?

很多人對于小型的展館還不是很了解,小型展館是指政府部門由于沒有專門的單體建筑或者場所,借助原辦公樓或舊廠房進行布局設計小型展館,滿足日常接待所用。小型展館設計是一種挑戰,在有限的空間內進行創意設計,還要顧及消防、暖通、流線、裝飾、展示等多方面內容,所以選擇重要的展館設計公司非常重要,只有專業的才能對空間更好的規劃,讓小型展館更具有美觀和實用性。

信可威注重創新和技術應用,尤其在數字展廳和線上全景展廳領域表現突出。公司結合最新的多媒體技術和互動體驗,為客戶提供更具科技感和沉浸感的展示效果。例如,其為北科瑞聲科技設計的展廳,不僅展示了企業的高科技產品,還通過智能音頻處理技術提升了展廳的互動性和科技感。